2 freist., pfeilerfreie Hallen in ruhiger Lage mit Büro-& Lagerebenen + ca. 2.500 m² Freifläche mgl.
04279 Leipzig, Halle zum Kauf
Kontaktdaten
-
NameHerr Ron Kaufmann
-
FirmaIC IMMOCONSULT e.K.
-
AdresseHillerstraße 3
04109 Leipzig -
E-Mail Direkt
-
Tel. Zentrale
-
Mobil
Objektdaten
-
Objekt ID304k99
-
ObjekttypenHalle, Halle/Lager/Produktion
-
Adresse04279 Leipzig
-
LageGewerbegebiet
-
Gesamtfläche ca.1.634 m²
-
Lagerfläche ca.1.634 m²
-
Fläche von1.634 m²
-
Grundstück ca.3.970 m²
-
HeizungsartFernwärme
-
Zustandrenovierungsbedürftig
-
ProvisionspflichtigJa
-
Käuferprovision7,14% inkl. MwSt.
Der Käufer verpflichtet sich, bei Abschluss eines Kaufvertrags eine einmalige Maklerprovision in o.g. Höhe aus dem Gesamtentgelt für das Auftragsobjekt an den Makler zu zahlen. Die Provision wird bei Vertragsabschluss fällig. Als Vertragsabschluss gilt die Beurkundung des Kaufvertrags. -
Kaufpreis1.950.000 EUR
Ausstattung / Merkmale
- ✓ Steinboden
Objektbeschreibung
Beschreibung
Bei dieser Immobilie handelt es sich um 2 pfeilerfreie, nebeneinander stehende Hallen mit Sanitäranlagen im EG und Büro-/Lagerflächen im OG in ruhiger Lage.
Die offene Gestaltung ermöglicht eine flexible Nutzung der Fläche und lässt Raum für kreative Konzepte.
Helle, gut beleuchtete Räume schaffen eine angenehme Arbeitsatmosphäre und bieten viel Platz für Lagerung/Produktion/Ausstellungen.
Ideal geeignet für:
- Produktion
- Kfz-Werkstatt
- Lagerhalle
- Onlinehandel
- Fitness
- Funsport
- Großhandel
Ausstattung
- eingezäuntes ca. 3.970 m² großes Grundstück
- 2 freistehende, nebeneinander liegende Hallen
- große Einfahrtstore
- Einbau von elektrischen Rolltor mgl.
- zum Teil renovierungsbedürftig
- deaktivierte Heizkörper vorhanden
- deaktivierter Deckenkrahn in einer Halle vorhanden
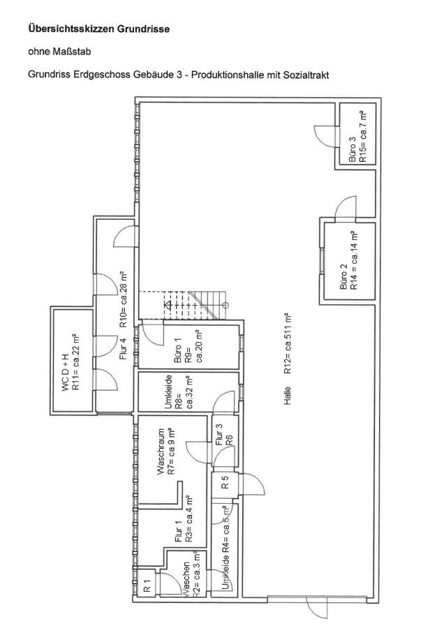
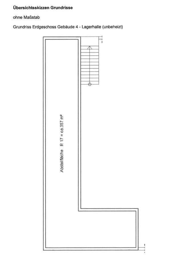
- Gesamtfläche beider Hallen: ca. 1.634 m²
- ca. 7,50 bis 9 m Hallenhöhe
- in beiden Hallen jeweils eine 2. Ebene vorhanden
- Sozial-Büro-Lager-Sanitärtrakt jeweils im EG vorhanden
- ca. 31 m² Einzelgarage an Halle 4
- Fernwärmeanschluss in Halle 3 vorhanden, in Halle 4 durch Verbindungsschacht mögl.
- ca. 2.500 m² Freifläche vorhanden
Sonstige Informationen
Die von uns gemachten Angaben haben wir nach bestem Wissen und Gewissen nach Informationen des Vermieters/Verkäufers und den uns übergebenen Informationen zusammengestellt. Eine Gewähr für diese Angaben können wir nicht übernehmen. Wichtige Zahlen und Informationen sind am Objekt zu überprüfen. Zwischenvermietung/Verkauf bleibt vorbehalten.
Lage
Die freistehenden Hallen befinden sich in Leipzig, im Stadtteil Dölitz.
Dölitz ist ein Stadtteil von Leipzig, der 1910 durch die Eingemeindung des Dorfes Dölitz entstand. Seit der kommunalen Neugliederung von Leipzig im Jahre 1992 bildet Dölitz mit Dösen den Ortsteil Dölitz-Dösen und liegt knapp 6 km südlich des Leipziger Stadtzentrums am östlichen Rand der Pleißenaue.
Die Anbindung an öffentliche Nahverkehrsmittel (Straßenbahn + Bus) befindet sich in ca. 500 m.
Zur B2 und A38 sind es 5 Autominuten.
In ca. 350 m befindet sich fußläufig der nä. Einkaufsmarkt.
In ca.150 m befindet sich der Erholungspark Lößnig-Dölitz mit dem beliebten kleinen und großen Silbersee.
In ca. 2 km befindet sich das Agra-Gelände.
Die ungefähre Position der Immobilie auf Google Maps ansehen (Link auf externe Website)






























