Sanierter Altbau mit Teilungserklärung, 1 GE + 6 WE, Balkone, umzäunter Innenhof, Keller
04289 Leipzig, Wohn- und Geschäftshaus zum Kauf
Kontaktdaten
-
NameHerr Ron Kaufmann
-
FirmaIC IMMOCONSULT e.K.
-
AdresseHillerstraße 3
04109 Leipzig -
E-Mail Direkt
-
Tel. Zentrale
-
Mobil
Objektdaten
-
Objekt ID302k42
-
ObjekttypenRenditeobjekt, Wohn- und Geschäftshaus
-
Adresse04289 Leipzig
-
Wohneinheiten6
-
Gewerbeeinheiten1
-
Wohnfläche ca.466,67 m²
-
Nutzfläche ca.80,10 m²
-
Kellerfläche ca.74,58 m²
-
Sonstige Fläche ca.5,52 m²
-
Grundstück ca.314,19 m²
-
HeizungsartZentralheizung
-
Wesentlicher EnergieträgerGas
-
Zustandvollsaniert
-
Statusvermietet
-
ProvisionspflichtigJa
-
Käuferprovision7,14 % inkl. MwSt.
Der Käufer verpflichtet sich, bei Abschluss eines Kaufvertrags eine einmalige Maklerprovision in o.g. Höhe aus dem Gesamtentgelt für das Auftragsobjekt an den Makler zu zahlen. Die Provision wird bei Vertragsabschluss fällig. Als Vertragsabschluss gilt die Beurkundung des Kaufvertrags. -
Kaufpreis1.299.800 EUR
Ausstattung / Merkmale
- ✓ Altbau
- ✓ Denkmalgeschützt
Objektbeschreibung
Beschreibung
Bei der angebotenen Immobilie handelt es sich um ein saniertes Wohn- und Geschäftshaus im Leipziger Stadtteil Probstheida.
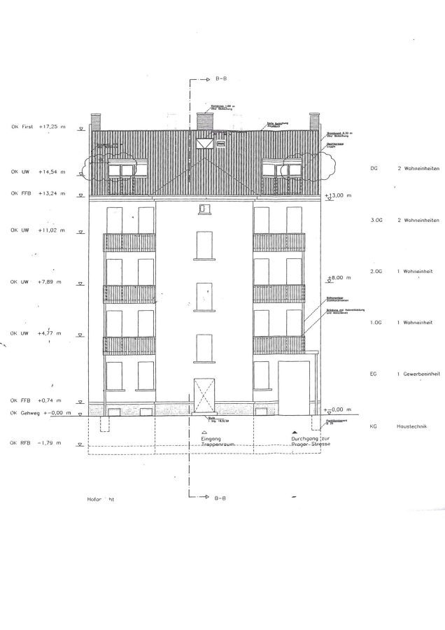
Die Immobilie ist denkmalgeschützt, besteht aus EG + 4 Geschosse und ist voll unterkellert.
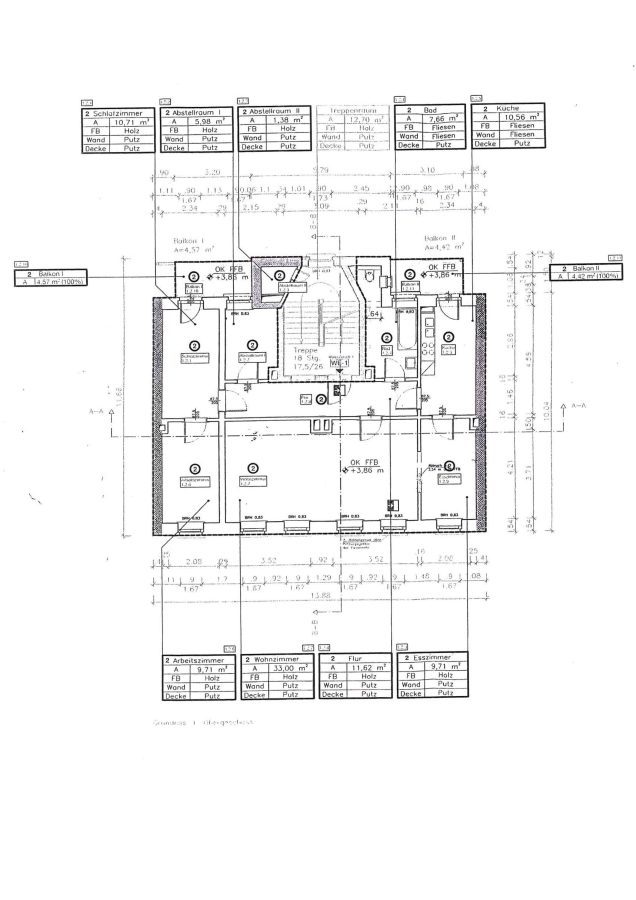
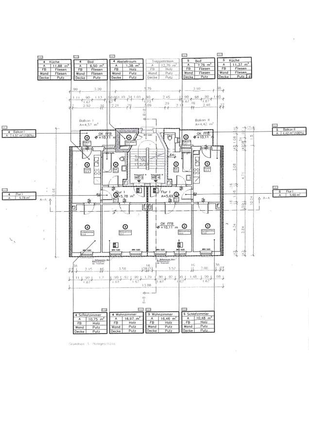
Zum Teil wurden 2 Wohneinheiten zu 1 zusammengelegt.
Zusätzliche Abstellräume befinden sich jeweils auf halber Treppe und bieten weitere Nutzfläche.
Ebenfalls überzeugt das Objekt mit einem umzäunten Innenhof zur gemeinschaftlichen Nutzung, wo sich auch der Müllplatz gut zugänglich befindet und ein Schuppen zum unterstellen von Fahrrädern oder Kinderwagen etc..
Für diese Immobilie liegt eine Teilungserklärung vor.
Die Wohnungen sind derzeit leer, bzw. kurzfristig bewohnt mit 3-monatiger Kündigungsfrist.
Der Laden im EG ist langfristig vermietet mit einer aktuellen JNKM von 24.000 €.
Ausstattung
- sanierter Altbau (2015 bis 2020)
- 6 Geschosse: KG, EG, 1. bis 3. OG, DG
- Denkmalschutz-Gebäude
- Teilungserklärung vorhanden
- Gaszentralheizung
- EG mit Gastronomieabluft über Dach
- 1 Abstellraum pro Etage (halbe Treppe tiefer)
- 2 Wohnungen pro Etage (zum Teil sind 2 Wohnungen zu 1 verbunden worden)
- Boden: Laminat, Fliesen
- Bäder mit Fenstern
- 1.OG bis 3.OG mit Süd-West-Balkonen
- DG mit Loggien
- Kellerabteil für jede Wohnung
- eingezäunter Innenhof
- Müllplatz im Hof
Sonstige Informationen
Die von uns gemachten Angaben haben wir nach bestem Wissen und Gewissen nach Informationen des Vermieters/Verkäufers und den uns übergebenen Informationen zusammengestellt. Eine Gewähr für diese Angaben können wir nicht übernehmen. Wichtige Zahlen und Informationen sind am Objekt zu überprüfen.
Zwischenvermietung/Verkauf bleibt vorbehalten.
Lage
Die angebotene Immobilie liegt im Stadtteil Probstheida.
Probstheida ist ein Stadtteil im Südosten Leipzigs.
Die benachbarten Ortsteile sind, im Uhrzeigersinn im Norden beginnend, Stötteritz, Holzhausen, Meusdorf, Dölitz-Dösen, Lößnig, Marienbrunn und Zentrum-Südost.
In unmittelbarer Nähe befinden sich die Herzklinik, die Alte Messe, das Völkerschlachtdenkmal, diverse Einkaufsmöglichkeiten, Banken, Ärzte, Schulen, Kindergärten und Restaurants.
In ca. 400 m befindet sich der älteste Leipziger Fußballverein.
Die Leipziger Innenstadt, sowie die A14 + A38 ist in nur wenigen Minuten mit den öffentlichen Nahverkehrsmitteln oder Auto erreichbar.
Die ungefähre Position der Immobilie auf Google Maps ansehen (Link auf externe Website)
























