Unausgebautes DG mit Baugenehmigung; 5 Räume, ca. 192,02 m² Gesamtfläche; Medien liegen in der Fläche an
04317 Leipzig, Wohnanlagen zum Kauf
Kontaktdaten
-
NameHerr Ron Kaufmann
-
FirmaIC IMMOCONSULT e.K.
-
AdresseHillerstraße 3
04109 Leipzig -
E-Mail Direkt
-
Tel. Zentrale
-
Mobil
Objektdaten
-
Objekt ID848k47
-
ObjekttypenRenditeobjekt, Wohnanlagen
-
Adresse04317 Leipzig
-
Wohnfläche ca.145,28 m²
-
Gesamtfläche ca.192,02 m²
-
HeizungsartFernwärme
-
Zustandsanierungsbedürftig
-
ProvisionspflichtigJa
-
Käuferprovision3,57 % inkl. MwSt.
Der Käufer verpflichtet sich, bei Abschluss eines Kaufvertrags eine einmalige Maklerprovision in o.g. Höhe aus dem Gesamtentgelt für das Auftragsobjekt an den Makler zu zahlen.nDie Provision wird bei Vertragsabschluss fällig. Als Vertragsabschluss gilt die Beurkundung des Kaufvertrags. -
Kaufpreis230.000 EUR
Objektbeschreibung
Beschreibung
Bei diesem Angebot handelt es sich um einen unsanierten Dachboden in einem denkmalgeschützten und sanierten Mehrfamilienhaus in Leipzig-Reudnitz.
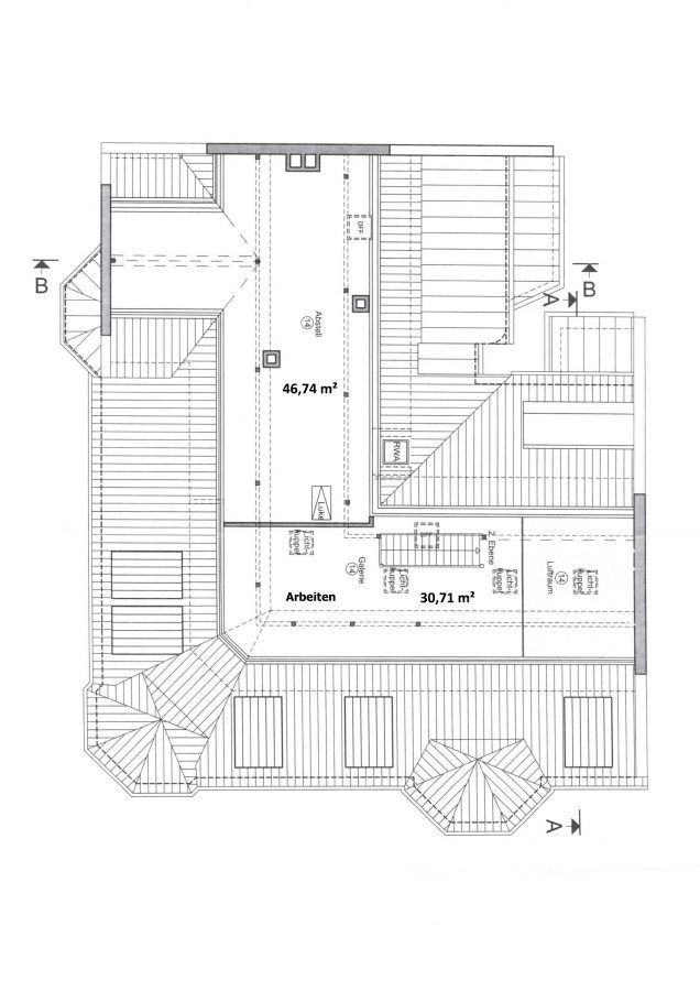
Mit der vorliegenden Baugenehmigung und einer entsprechenden Umnutzung, kann das derzeitige Teileigentum zu einer Maisonette-Eigentumswohnung mit 5 Räumen (inkl. ca. 46,74 m² großen Abstellraum in der oberen Ebene) umgebaut werden.
Alle Medien liegen an (Strom, Klingel, Wasser, Abwasser, Heizung, Telekom).
In den Kosten enthalten sind:
- Baugenehmigung
- Brandschutz
- Abgeschlossenheit
- Umwandlung von Teil - auf Wohnungseigentum
- ca. 192,02 m² Gesamtfläche
- ca. 145,28 m² Wohnfläche
- ca. 46,74 m² Abstellraum
Ausstattung
- kernsanierter Altbau
- Erdgas liegt am Haus an
untere Ebene
- 3-Zimmer
- derzeit ca. 2,89 m Raumhöhe
- ca. 53 m² offener Wohn-/Essbereich mit Zugang zur Loggia
- Tageslichtbad mit Badewanne und Dusche
- großes Schlafzimmer und Kinderzimmer
- mehrere Dachgauben erlaubt
obere Ebene:
- Galerie/Arbeiten mit ca. 30,71 m²
- Abstellraum mit ca. 46,74 m²
- kein Lift
- Kellerabteil vorhanden
- separater Wirtschaftseingang von Straße aus zum Keller
- 2 sep. Fahrradkeller
Sonstige Informationen
Die von uns gemachten Angaben haben wir nach bestem Wissen und Gewissen nach Informationen des Vermieters/Verkäufers und den uns übergebenen Informationen zusammengestellt. Eine Gewähr für diese Angaben können wir nicht übernehmen. Wichtige Zahlen und Informationen sind am Objekt zu überprüfen. Zwischenvermietung/Verkauf bleibt vorbehalten.
Lage
Die angebotene Immobilie befindet sich im Leipziger Stadtteil Reudnitz-Thonberg in einem gepflegten und sanierten Wohnhaus.
In unmittelbarer Nähe befinden sich Lebensmittelläden, zahlreiche Einkaufsmöglichkeiten für den täglichen Bedarf, gastronomische Einrichtungen, Einkaufszentrum, Schulen, Ärzte, Apotheken und Banken.
In ca. 300 m liegt der beliebte Lene-Voigt-Park.
Eine Straßenbahn- und Bushaltestelle befinden sich in ca. 200 m Entfernung.
Die Innenstadt liegt in ca. 1,5 km Entfernung.
In wenigen Fahrminuten rreichen Sie die B6, neue Messe und A14.
Die ungefähre Position der Immobilie auf Google Maps ansehen (Link auf externe Website)






















